Let's Grow Tveita
Community center

Public facility

The project is made as a contribution to the Oslo Architecture Triennial 2022. With the title "Mission Neighborhood - (Re)Forming communities", it aims to explore how we create the places we share.

Tveita is a neighborhood located in the east of Oslo, marking the entrance to the Grorud valley and creating the link between the center of Oslo and the various "satellite" districts located further away.

After a detailed sociological study allowing us to define the needs and issues of the neighborhood, we decided to contribute by proposing a project for a future community center.

With the Let's Grow Tveita project, realized in team with Lavinia Krick, we wanted to propose an inspiring example of neighborhood development, allowing to reconsider the relationships within this community.

Thorough analysis




Until 1963 apart from the buildings of Tveten Gård the area Tveita was mainly farmland. The Tveten Gård was probably build during the Viking Age and is first mentioned in written sources from 1408.

The farm went through a period with several short time owners. Therefore there was not any special work done in the yard. In 1810 the farm was bought by Even Bernhard Stenersen and owned by its descendants until the Oslo Municipality bought Tveten Gård in 2006. Today it forms the cultural center of the area. It has the potential to create the identity of the neighborhood for the inhabitants of Tveita, but it nowadays it only provides a few activities for seniors and disabled people.


Between 1963 and 1967 about 2,600 dwellings were built in the area. Several proposals and models were put forward for how the area should be designed. The final zoning plan was prepared by the architectural firm Rinnan og Tveten for OBOS.

Tveita Senter opened in 1970 as the country’s first indoor center. It included shops as well as the Tveita community center. After a fire in 1978 the community center was completely damaged. It was rebuilt and extended between 2002 and 2003. Today it has an area of 16,000 m² and accommodates over 70 stores. The center is owned by OBOS Forretningsbygg.




The area is connected to the city center by the Tveita Senter. Indeed, it also houses the metro station, serving the city center in less than 20 minutes. The area is mostly pedestrian except for the parking lots placed on the outskirts.


Most of the farmland has disappeared with the development of the city, however some of the area around the farm has remained agricultural and could be considered for expansion.






The demographics point out that the neighborhood is very diverse and there are a lot of different cultures coming together. Moreover the demographics show that many people are unemployed and there is a high amount of disabled people living in the neighborhood. The existing outdoor activities are always accessible to everyone.




The educational institutions form the majority of the inner social infrastructure of the district. Most of them are located near the farm, Tveten Gård. The farm also represents a cultural institution and offers some activities for seniors, children and youth. Several kindergartens and nurseries are scattered throughout the neighborhood, mostly around the central green space.


The area offers many outdoor facilities, mostly for sports activities. They are also concentrated in the central line of the district. The different activities are isolated from each other, and meeting spaces inviting different user groups are missing. The area offers much more outdoor social infrastructure than indoor, thus lacking spaces that residents can use during the winter.


Even though the population composition shows that many of the people living in Tveita are adults and seniors, the neighborhood lacks of public indoor spaces for them. The indoor social places for children and youths are mainly educational institutions. The Tveita center forms the only meeting place where all age groups can come together.


Looking at the opening hours of indoor places to socialize in the center of Tveita it becomes clear that the majority of activities are offered only during the week. Moreover the neighborhood lacks indoor activities offered in the evening.



The Tveten Gård forms today the main area of social activities, hosting a senior house, a youth club and a urban farming area. Nevertheless the development opportunities are endless and the demand in new social public places is high.

In total about 60% of the space in the buildings of the Tveten Gård is not in use and about 20% could be used more frequently or efciently. This sums up to 80% of the area having the potential to answer the needs in social activities of the inhabitants. Due to the farms rich history, it also has an immense potential to be developed as a community centre while strengthening the identity of the neighborhood.

Today, the area of Tveita provides a lot of outdoor activities that are mainly located in the central line of the neighborhood. As the only social indoor meeting place is today the Tveita center, hosting exclusively commercial activities, there is a lack of indoor meeting places people can use during the winter. The functions are isolated and spaces that brings diferent user groups together are missing.


Strategies


Urban and landscape design




As the farm is located in the western part of Tveita, the urban strategy is developed around a journey of emerging agriculture hubs, linking the diferent actual educational institutions, social activities and forest areas with the future community center, developed in the Tveiten Gård.

To strengthen the neighborhood's identity as a former agriculture and forestry area, new permaculture hubs are created. The aim is to form a starting point from where it allows people to try out, react to the outcomes and gives the opportunity to slowly grow and spread throughout the neighborhood. People can come together, experience a sense of community and share their everyday lives. In addition to the permaculture development, the new community center also hosts several creative activities and social meeting places.

The Tveiten Gård is reconsidered as a whole, following the principal of a circular economy, where all the activities, spread in the diferent buildings, give and take from each other. Therefore, the new greenhouse creates the link with the enlarged permaculture area, the restaurant and the market. The diferent working and rental spaces, workshops and classes, bring new opportunities for local entrepreneurs and inhabitants while showing the possibilities of an efervescent space, where all user groups comes together - children, youth

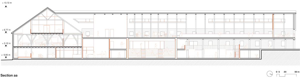
Architectural design

The new architectural intervention, focused on the Ståll, Lav and Vognskjul, as key points to rehabilitate, keeps the main load-bearing structures. Indeed, in a the perspective of a minimal environmental and cost impact, the choice has been to rehabilitate existing structures, keeping as much as possible. It includes a new multi-purpose hub bringing diferent user groups together and brings awareness about diferent activities. The main concept consists in an open building, where all the different activities are exposed to the public, allowing them to consider new perspectives. Therefore, the new community center hosts playing and relaxing areas like an open market café, a flexibe indoor stage and an exhibition space, workshops, co-working areas, creative spaces and startup rental rooms.



















BACK TO PROJECTS